Menú
INICIO
ESTUDIO
PROYECTOS
CONTACTO
Menú
INICIO
ESTUDIO
PROYECTOS
CONTACTO
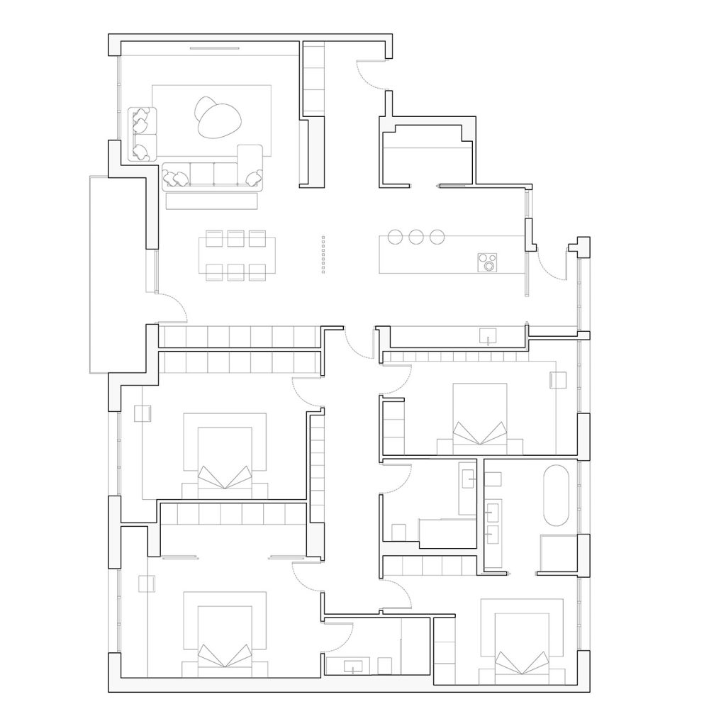
RIOJA 25
Vitoria-Gasteiz 2019
Inicio
»
NO EJECUTADOS
»
Rioja 25
Estado actual
Estado reformado